ANABRANCH

The reorganization of an old stone house creates a new current of circulation, light, and connection.

CONCEPTS EXPLORED

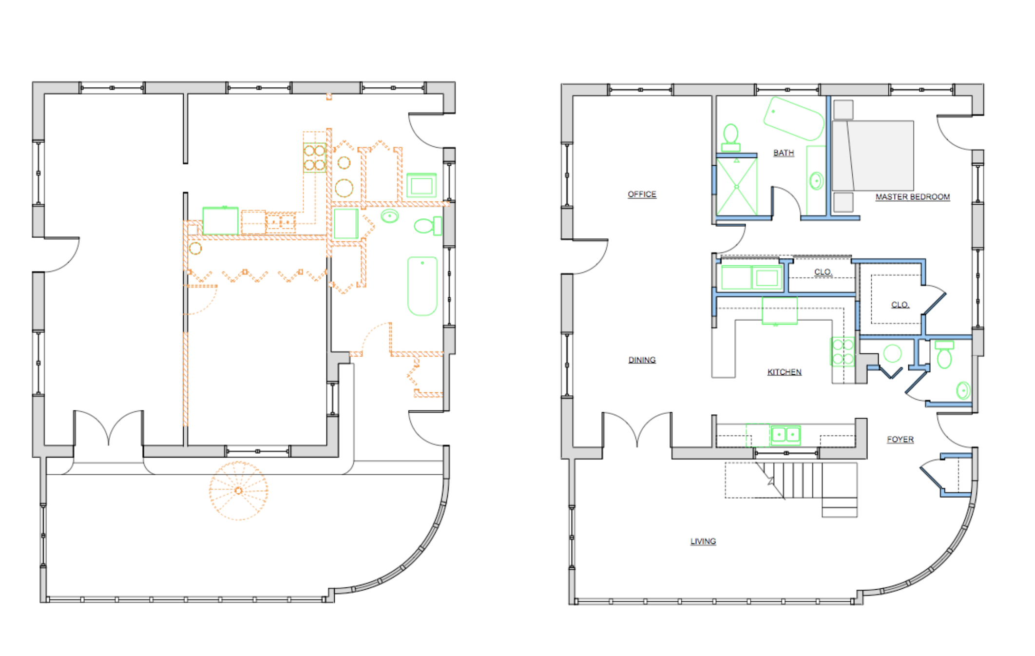
Built in 1920 from local stream rock, the house was defined by disarray — rooms cut off from one another, circulation unclear, and the master bedroom stranded at the center with no sunlight or privacy. The renovation reimagines the interior as a continuous current, carving new pathways through the stone structure to connect living spaces and restore coherence.

An anabranch is a section of a river that breaks away from its main channel to form a new course before rejoining downstream — a natural act of divergence and renewal. The project takes its name from this idea: a new route of movement cut through solid ground, allowing light and air to circulate freely. A steel stair threads upward between heavy walls, anchoring the flow, while a modern fireplace and reworked kitchen complete the sequence, bringing direction and calm. Like the river itself, Anabranch transforms disconnection into continuity — a rediscovered current of openness within the old frame.

PROJECT SPECS AND WRAP UP

sdf

asdf

asdfasdfasdfasdfasdfa

A weathered steel and wood canopy creates an architectural ecotone — a transition zone where inside and outside blur and overlap.